2008
Kuningattarenkatu
Loviisa
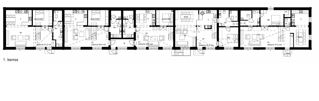
1860-luvulla rakennetun pihamakasiinin muutos asunnoiksi Loviisan torin laidan historiallisesti merkittävään kortteliin.
Loviisa
1860-luvulla rakennetun pihamakasiinin muutos asunnoiksi Loviisan torin laidan historiallisesti merkittävään kortteliin.